
Котел 400 КВт с РПК в Абакане
Цена 683 000 рублей с НДС
Модель с ручной загрузкой топлива
Сброс золы и шлака производится поворотными опрокидывающимися колосниками
Дутье и тяга регулируются шиберами, поставляются в комплекте с котлом
Труба сталь 10 повышенной прочности устойчива к коррозии, обеспечивает высокую теплопроводность
Отапливаемая площадь помещения от 3000 до 4300 м2, объем от 9000 до 13000 м3. Температура воды до 115 С.
Марка котла | Котел КВр | Топливо | Уголь, Твердотопливный |
---|---|---|---|
Максимальная тепловая мощность, кВт | 400 | Тяга | Уравновешенная |
Максимальная тепловая мощность, МВт | 0.4 | Низшая теплота сгорания топлива УГОЛЬ, кКал/кг | 5230 |
Максимальная тепловая мощность, Гкал | 0.34 | Температура воды, °C | 70-95, 90-115 |
Расход топлива среднечасовой за отопительный сезон, кг/ч | 39 | Давление рабочей среды, МПа (кгс/cм²) | 0.3-0.6 |
КПД (УГОЛЬ), не менее, % | 80 | Гидравлическое сопротивление при перепаде t, МПа (кгс/cм²) | Не более 0.07 (0.7) |
Аэродинамическое сопротивление, Па (мм. вод. ст.) | 131 | Габаритные размеры котельного блока, длина*ширина*высота, мм | 2050х1130х1950 |
Температура уходящих газов, °C | 200 | Габаритные размеры котла с топкой, длина*ширина*высота, мм | 2050х1130х2050 |
Расход топлива при максимальной нагрузке котла (УГОЛЬ), кг/ч | 79 | Масса, кг | 1800 |
Расход теплоносителя среды, м³/ч | 14 | Вид топки | ручная |
Расход условного топлива, кг/ч | 59 | Тип котла | Водогрейный |
Отапливаемая площадь, м² | 3000-4300 | Энергоэффективность | Высокая |
Отапливаемый объем, м³ | 9000-13000 | Бренд | HeatExpert |
Это устройство работает со вспомогательным оборудованием, которое приобретается отдельно. Если вы хотите сразу узнать стоимость всей установки, добавьте заинтересовавшие вас позиции в корзину. Чтобы точно расчитать стоимость доставки до вашего объекта, укажите его адрес в корзине и оправьте нам заявку. Обычно мы отвечаем в течение дня.


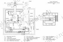
Котел с РПК
Промышленный водогрейный котел 400 КВт с топкой РПК с поворотными колосниками
Основные характеристики:
- мощность 400 КВт, 0,4 МВт, 0,34 ГКал;
- максимальная температура 115 °С;
- топливо – каменный и бурый уголь;
- давление не более 0,6 МПа;
- отапливаемый объем от 9000 до 13000 м3 (в зависимости максимальной температуры в регионе эксплуатации). Проверить или подобрать мощность котла в Абакане или любого другого города вы можете по ссылке.
- устанавливается в котельных административных, производственных зданий и отопительных котельных ЖКХ.
Устройство и описание котла с топкой РПК с поворотными колосниками
Конструкция котла состоит из двух блоков топки и конвективной части. В топку загружается и сжигается твердое топливо – уголь. Боковые и верхняя стенки топки котла выполнены из труб с вваренной стальной полосой. Горячие газы выходят из топки вверху топочной камеры и поступают в конвективные секции. Секции конвективных пакетов устанавливаются двумя блоками. Горячие газы из котельного блока выходят в задней части сверху.
Конструкция котла с топкой РПК позволяет облегчить ручной труд кочегара.
Циркуляция котла 400 КВт с РПК обеспечивает быстрый нагрев воды и выход на требуемую мощность. Локальные перегревы отдельных зон поверхностей нагрева исключаются точностью производимых расчетов гидравлики. Дренажи и воздушники производят дренирование трубной системы от шлама и удаление скапливающего воздуха.
Принцип работы котла с топкой РПК мощностью 400 КВт
Твердое топливо сгорает в топке. Горячие газы омывают трубную систему и нагревают воду до 115 °С.
Циркуляция воды в котельном агрегате производится циркуляционным насосом. Для восполнения теплоносителя, теряемого при дренировании и в теплосети, производится подпитка подпиточным насосом.
Для горения топлива вентилятором в короб подается воздух, через отверстия в колосниках воздух поступает в топку. Образующиеся зола и шлак ссыпаются в канал шлакоудаления при повороте рычага топки. Горячие дымовые газы проходят трубную систему котельного блока и поступают в газоходы котельной. В газоходах может устанавливаться золоуловитель ЗУ-0,4. Для преодоления сопротивления газоходов и золоуловителя перед дымовой трубой монтируется дымосос Д 3,5. Далее газы через дымовую трубу поступают в атмосферу.
В котле на угле, очень важно не допускать горения угля в топке при выключенном вентиляторе, так как поступающий воздух охлаждает колосники. При выключенном вентиляторе, колосники могут деформироваться от перегрева и их нужно будет преждевременно менять.
Водогрейный котел 400 КВт с РПК должен быть укомплектован автоматикой. Заводская автоматика ограничивает предельно допустимые параметры работы, температуру и давление воды, минимальный расход теплоносителя, поддерживает минимально допустимое разряжение.
Водно-химический режим водогрейного котла должен быть организован в соответствии с требованиями руководства по эксплуатации и нормативной литературы по тепловым энергоустановкам и тепловым сетям. Для подбора водоподготовительной установки требуется провести химический анализ воды.
Все необходимое котельно-вспомогательное оборудование для подключения котла 400 КВт вы можете купить на нашем котельном заводе.
Подключение котла с РПК
Все котельно-вспомогательное оборудование для подключения котла 400 КВт с РПК вы можете купить на нашем котельном заводе. Также наш завод оказывает услуги по проектированию, монтажу, шеф монтажу и пуско-наладке котельных во всех городах, в том числе в Абакане.
Безопасность котла
Безопасная эксплуатация котла обеспечивается выполнением требований
- Инструкции по эксплуатации
- Правил устройства и безопасной эксплуатации водогрейных котлов с температурой нагрева воды не выше 115 °С
- Правил технической эксплуатации тепловых энергоустановок
Требования к помещениям котельной регламентируются СП 89.13330.2016 «Котельные установки»
Водогрейный котел 400 КВт с РПК должен управляться автоматикой безопасности, имеющей сертификат соответствия.
Одним из самых важных устройств, обеспечивающих безопасную эксплуатацию водогрейного котла, является предохранительный клапан. Расчет пропускной способности для каждой мощности приведен в паспорте котла.
Необходимые условия монтажа и эксплуатации котла 400 КВт с РПК представлены в паспорте и руководстве по эксплуатации.
Гарантии изготовителя
На заводе изготовителе котел 400 КВт с РПК подвергается гидравлическому испытанию давлением 0,9 МПа (9 кгс/см2).
Гарантийное обслуживание включает в себя бесплатное устранение скрытых заводских дефектов, замену деталей и узлов вышедших из строя в период гарантийного срока при условии монтажа и эксплуатации оборудования Покупателем в соответствии с его назначением, технической документацией, техническими нормами, правилами ввода в эксплуатацию и эксплуатации данного оборудования.
Срок эксплуатации стальных промышленных котлов 10 лет.
Купить котел 400 квт с рпк в Абакане
Промышленный водогрейный котел 400 КВт с РПК ( - мощность 0,4 МВт; - твердое топливо уголь; - температура 115 градусов; - отапливаемая площадь* от 3000 до 4300 м2; - отапливаемый объем* от 9000 до 13000 м3 (* диапазон для самого холодного и самого теплого региона РФ)); - применение для отопления производства, жилых зданий, цехов, складов, промышленных предприятий.
Предлагаем вам подобрать мощность водогрейного промышленного котла по отапливаемой площади и объему, с учетом типа строения и данных о температуре в регионе и в Абакане, вида топлива.
Выбор водогрейного котла для котельной производится по каталогу отопительного оборудования нашего Котельного завода с помощью калькулятора подбора мощности. Водогрейные котлы отопления для промышленных предприятий предлагается выбрать из модельного ряда газовых, дизельных, мазутных, твердотопливных угольных и дровяных котлов, с ручными и автоматическими топками мощностью от 150 кВ до 4 МВт, и температурой нагрева теплоносителя до 115 градусов.
Подбор мощности водогрейного промышленного котла для отопления учитывает:
- температуру в самую холодную пятидневку в отопительный сезон. Для каждого региона РФ температура различна, данные берутся из СП 131.13330 «Строительная климатология»;
- тепло, необходимое для возмещения потерь тепла через ограждения, окна, двери здания и тепловые потери через не плотности строения и открываемые двери;
- температуру воздуха внутри помещений. Для различных типов и назначений строений она существенно отличается:
Тип отапливаемого строения | Температура внутри помещения |
---|---|
Жилые строения и административные здания | + 20 С° |
Больницы, детские сады | + 22 С° |
Учебные заведения, предприятия общепита, учреждения культуры, школы | + 16 С° |
Магазины и депо | + 15 С° |
Кинотеатры | + 14 С° |
Гаражи | + 10 С° |
Бани | + 25 С° |
- объем строения. Для определения наружного объема строения площадь по наружным стенкам строения на уровне первого этажа перемножается на высоту. Для панельных домов высота определяется: от уровня пола (нулевой отметки) до верхней плоскости теплоизоляционного слоя чердачного покрытия. Для остальных зданий высота определяется от уровня земли. Подбор мощности для отопления различных по назначению строений считается отдельно. Все полученные значения мощности складываются.
Подбор мощности водогрейного промышленного котла производится для общей суммарной мощности каждого отдельно стоящего задания.
Если вам требуется подобрать мощность котла в Абакане для котельной с учетом вентиляции здания, горячего водоснабжения объекта, потерь в теплотрассе - необходимо производить более подробный расчет. Данный расчет мы можем произвести для вас бесплатно. Отправьте опросный лист и заявку на электронный адрес sale@kotel-kv.ru или позвоните по телефону 8 (800) 551-70-98.